Accueil Suivant

Cloitre Contemporain

ENSA, S3

Logement collectif

Illustrator

Charpente bois

Élévation texturée

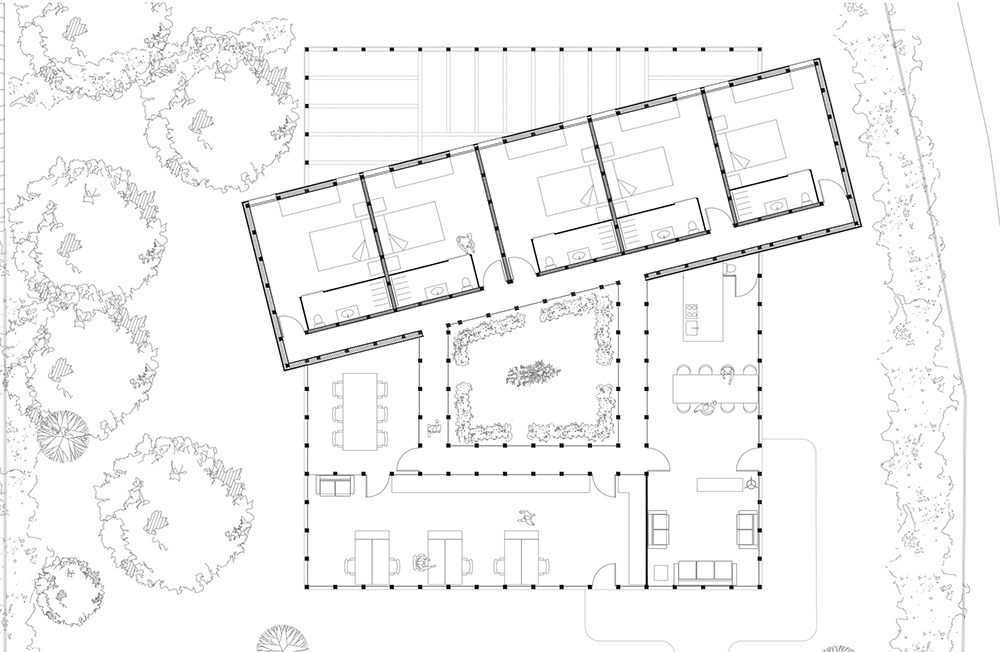
Le Cloître Contemporain interroge les modes de vie en communauté dans le quartier pavillonnaire d'Élisabethville. Il propose un mode de vie commun en réponse aux transitions sociales qui prennent de l'ampleur depuis la crise sanitaire de 2020, ainsi qu'à la diversité des modes de vie qui émergent dans les sociétés occidentales contemporaines.

Élisabethville, ancienne destination de plaisance des Parisiens, offre un accès à la capitale en une heure par le train, tout en garantissant un cadre de vie de qualité. Des conditions de plus en plus recherchées par bon nombre de jeunes actifs développant une activité professionnelle autonome.

Ce projet se veut donc un espace propice à la vie et au travail en communauté, autour d'un mode de vie et d'objectifs communs. C'est donc naturellement qu'il s'inspire des programmes développés et perfectionnés pour les structures ecclésiastiques, tout en s'inscrivant dans une culture contemporaine.

Dans ce projet, le squelette de bois, rappelant les colombages typiques du célèbre quartier où il s'implante, se prolonge à travers l'édifice pour créer une pergola dans la partie jardin. Seules les chambres, uniques espaces totalement intimes, rompent l'unité des espaces partagés.

Plan Coupe Perspective Élévation